Dom na wynajem Bytom, Sucha Góra

4 pokoje
110.11 m²
45,41 zł/m2
7HS-DW-22424

5 000 zł

Dom na wynajem
Nowa oferta

Szczegóły oferty

Symbol oferty 7HS-DW-22424
Powierzchnia 110,11 m²
Powierzchnia użytkowa [m2] 101,11 m²
Powierzchnia działki [m2] 162 m²
Liczba pokoi 4
Liczba sypialni 3
Rodzaj domu skrajny szereg
Technologia budowlana pustak ceramiczny
Standard
Liczba pięter w budynku 2
Wymiary działki 7,5x22 m
Garaż brak
Okna nowe PCV
Instalacje nowe
Liczba tarasów 1
Zagosp. działki niezagospodarowana
Ukształtowanie działki płaska
Kształt działki prostokąt
Pokrycie dachu blacha
Stan budynku do zamieszkania
Ogrodzenie działki siatka w ramach
Rok budowy 2026
Gaz brak
Woda jest
Dojazd droga utwardzona
Otoczenie działki niezabudowane
Ogrzewanie pompa ciepła
Umeblowanie częściowo umeblowane
Alarm tak
Odległość do komunikacji publicznej [m] 300 m
Odl. do sklepu [m] 300 m
Tarasy taras duży
Drzwi antywłamaniowe tak
Rolety antywłamaniowe tak
Prąd jest
Kanalizacja szambo
Pomieszczenia
Typ kuchni otwarta
Rodzaj kuchni aneks kuchenny - połączony z salonem
Typ łazienki razem z wc
Liczba łazienek 2
Liczba WC 2
Liczba przedpokoi 1
Wiktoria Świętek

Wiktoria Świętek

Doradca ds. nieruchomości

Napisz wiadomość 91 Ofert

Opis nieruchomości

KOMFORTOWY DOM W SPOKOJNEJ LOKALIZACJI- BYTOM
 
ZOSTAŃ PIERWSZYM NAJEMCĄ!

Do wynajęcia dom w zabudowie szeregowej- szereg zewnętrzny o powierzchni 110,11 m2 usytuowany w spokojnej i zielonej okolicy Bytomia.

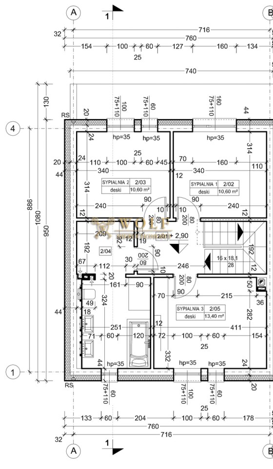
Nieruchomość składa się z:
Parter budynku:

  • Komunikacja 5,91 m2
  • pomieszczenie techniczne 3,68 m2
  • WC 2,06 m2
  • Salon/kuchnia/jadalnia 33,05 m2

Razem: 44,7 m2

Piętro budynku:

  • Korytarz + Schody 4,72 m2 + 4,45 m2
  • Sypialnia 1 - 10,67 m2
  • Sypialnia 2 - 10,67 m2
  • Sypialnia 3 - 13,46 m2
  • Łazienka + garderoba 12,44 m2

Razem: 56,41 m2
łączna powierzchnia użytkowa 101,11 m2

Nieruchomość w trakcie wykańczania pod klucz, w którym zostaną zawarte:

  • wyposażenie kuchni
  • wykończenie łazienki
Dodatkowo istnieje możliwość doposażenia o dodatkowe sprzęty lub meble

Przed budynkiem znajdują się 2 miejsca parkingowe
Osiedle prywatne, monitorowane, z automatyczną bramą wjazdową

MEDIA: woda, prąd, szambo, ogrzewanie- pompa ciepła

 

Idealna lokalizacja, bardzo dobre połączenie w kierunku autostrady A1.
W pobliżu znajduje się szkoła, przedszkole, przystanek autobusowy oraz liczne sklepy.

Cena najmu 5.500 zł + media wg. zużycia (tj. woda, prąd, gaz, kanalizacja) 
Obowiązuje najem okazjonalny na 12 miesięcy z możliwością przedłużenia
kaucja: 2-miesięczna

Zapraszam na prezentację nieruchomości po wcześniejszym kontakcie telefonicznym.

Opiekun oferty:

Wiktoria Świętek
tel. 533 777 274

E-mail: biuro@wolfnieruchomosci.pl

Doradca ds. nieruchomości

Proszę wprowadzić poprawne imię i nazwisko
Proszę wprowadzić poprawny numer telefonu
Proszę wprowadzić poprawny adres e-mail
Proszę zaznaczyć wymagane zgody
Rozwiąż równanie:
26 5
Niepoprawny wynik