Mieszkanie na sprzedaż Świerklaniec

3 pokoje
69.29 m²
7 715,40 zł/m2
parter
7HS-MS-22192
Oblicz ratę kredytu

534 600 zł

Mieszkanie na sprzedaż
Nowa oferta

Szczegóły oferty

Symbol oferty 7HS-MS-22192
Powierzchnia 69,29 m²
Powierzchnia użytkowa [m2] 69,29 m²
Liczba pokoi 3
Rodzaj budynku apartamentowiec
Standard
Opłaty w czynszu administracja, wywóz śmieci
Opłaty wg liczników prąd, woda
Piętro parter
Liczba pięter w budynku 1
Stan lokalu Do wykończenia
Mies. czynsz admin. 120 PLN
Okna nowe PCV
Instalacje nowe
Balkon brak
Liczba tarasów 1
Rok budowy 2025
Widok las
Woda tak - własna
Dojazd asfalt
Otoczenie las
Ogrzewanie własne elektryczne
Tarasy taras duży
Usytuowanie dwustronne
Rolety antywłamaniowe tak
Pomieszczenia
Podłogi pokoi wylewka
Rodzaj kuchni aneks kuchenny - połączony z salonem
Typ łazienki razem z wc
Liczba łazienek 1
Liczba przedpokoi 1
Aneta Wilk

Aneta Wilk

Doradca ds. nieruchomości
Nr licencji: 23644

Napisz wiadomość 50 Ofert

Opis nieruchomości

!!NOWA INWESTYCJA!! Nowoczesny i komfortowy apartament z ogródkiem w Świerklańcu – w otoczeniu lasu!

Brak opłaty PCC!

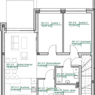
Na sprzedaż przestronny apartament o powierzchni 69,29 m², usytuowany na parterze kameralnego, piętrowego budynku.

Funkcjonalny układ pomieszczeń:

  • wiatrołap,

  • salon z bezpośrednim wyjściem na taras,

  • otwarta kuchnia,

  • 2 oddzielne pokoje,

  • łazienka,

  • pomieszczenie gospodarcze.

Do mieszkania przynależy taras oraz miejsce parkingowe.

Stan deweloperski obejmuje:

  • nowoczesny strop parterowy Vektor z możliwością wykończenia jako beton architektoniczny,

  • solidna konstrukcja dachu: krokwie, pełne deskowanie + membrana PVC firmy SIKA,

  • wysokiej jakości okna 3-szybowe PVC (ramy 82 mm, kolor antracyt, przesuwne tarasowe HS U-0,92, szyba U-0,6),

  • stylowe drzwi wejściowe drewniane w kolorze antracyt z doświetlaczem (U-0,09),

  • rynny PVC w kolorze antracyt,

  • doskonała izolacja: fundament XPS 10 cm + podłoga 15 cm, ściany 20 cm styropian grafitowy λ 0,09 A, dach ocieplony pianą natryskową 25-30 cm,

  • rolety sterowane elektrycznie (żaluzje na stronach południowej i zachodniej),

  • instalacja elektryczna z systemem folii grzewczych – sterowanie temperaturą we wszystkich pomieszczeniach,

  • wentylacja grawitacyjna nawiewno-wywiewna z higrosterowanymi nawiewnikami w oknach,

  • odwodnienie deszczowe z rozsączaniem do gruntu,

  • przyłącze światłowodowe.

Wyjątkowa lokalizacja! Apartament położony w malowniczej okolicy, w otoczeniu domów jednorodzinnych i terenów zielonych. W pobliżu las, Jezioro Zalew Nakło-Chechło oraz liczne ścieżki rowerowe. Dodatkowo w niedalekiej odległości znajdują się: szkoła, przedszkole, przystanek autobusowy oraz sklepy.

Nie przegap tej wyjątkowej oferty! Zadzwoń i umów się na prezentację!

Opiekun oferty:

Aneta Wilk

tel. 533 777 944

E-mail: biuro@wolfnieruchomosci.pl

Zapraszam również do odwiedzenia naszego biura, które mieści się w Tarnowskich Górach przy ul. Wyszyńskiego 9 A

Kalkulatory

Kalkulator kredytowy

Wysokość raty

PLN
%

Kalkulator kosztów

Podatek od czynności cywilno-prawnych

Taksa notarialna
(opłata notarialna)

Wniosek o wpis do KW

VAT od prowizji
agencji nieruchomości

VAT od taksy notarialnej
(opłaty notarialnej)

Prowizja agencji nieruchomości

Wypisy aktu notarialnego

Razem

Uwaga: mogą wystąpić dodatkowe opłaty za założenie księgi wieczystej oraz ustanowienie hipoteki.

PLN
PLN
PLN
PLN
PLN
PLN
%
PLN

Podobne oferty

Nowa oferta

Mieszkanie na sprzedaż

Świerklaniec

3 pokoje 74 m2 7 449,27 zł/m2
Nowa oferta
Nowa oferta

Mieszkanie na sprzedaż

Świerklaniec

3 pokoje 67 m2 7 639,30 zł/m2
Nowa oferta
Nowa oferta

Mieszkanie na sprzedaż

Świerklaniec

3 pokoje 79 m2 7 414,60 zł/m2
Nowa oferta
Nowa oferta

Mieszkanie na sprzedaż

Świerklaniec

3 pokoje 85 m2 7 759,41 zł/m2
Nowa oferta

Doradca ds. nieruchomości

Proszę wprowadzić poprawne imię i nazwisko
Proszę wprowadzić poprawny numer telefonu
Proszę wprowadzić poprawny adres e-mail
Proszę zaznaczyć wymagane zgody
Rozwiąż równanie:
30 1
Niepoprawny wynik