Obiekt na sprzedaż Tarnowskie Góry

937.70 m²
4 585,69 zł/m2
7HS-BS-22267
Oblicz ratę kredytu

4 300 000 zł

Obiekt na sprzedaż

Szczegóły oferty

Symbol oferty 7HS-BS-22267
Powierzchnia 937,70 m²
Powierzchnia działki [m2] 677 m²
Rodzaj obiektu kamienica
Standard
Opłaty wg liczników gaz, prąd, woda
Rok budowy 1790
Gaz jest
Woda jest
Dojazd asfalt
Otoczenie działki zabudowane
Możliwość parkowania tak
Własny parking tak
Wejście od ulicy
Prąd jest
Kanalizacja miejska
Pomieszczenia
Aneta Wilk

Aneta Wilk

Doradca ds. nieruchomości
Nr licencji: 23644

Napisz wiadomość 48 Ofert

Opis nieruchomości

Na sprzedaż – Zabytkowa Kamienica w sercu Tarnowskich Gór

Lokalizacja:

Tarnowskie Góry – ścisłe centrum miasta, tuż przy Rynku
Kamienica „Pod Białym Aniołem” - Dom Cochlera – wyjątkowy obiekt z końca XVII wieku, będący jednym z najcenniejszych zabytków w sercu miasta.

Opis nieruchomości:

Na sprzedaż wyjątkowa kamienica o powierzchni całkowitej ok. 937,7 m²
(powiąrzchnia użytkowa: 596,3 m²) położona w jednej z najbardziej prestiżowych lokalizacji Tarnowskich Gór.
To niepowtarzalna okazja zarówno dla inwestorów, jak i osób poszukujących nieruchomości pod działalność gospodarczą, biurową lub wynajem długoterminowy.


Układ pomieszczeń:

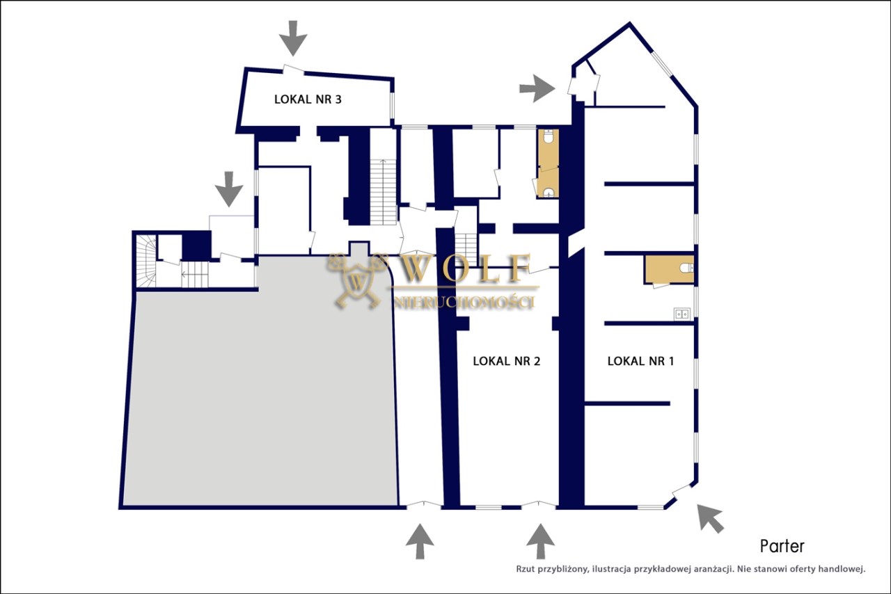
PARTER – 253,3 m²

  • Lokal 1 – 54,2 m²
    Składa się z 2 pomieszczeń, magazynu i aneksu kuchennego.
    Aktualnie wynajmowany – sklep optyczny.
    Odrębne wejście od frontu, ogrzewanie gazowe.

  • Lokal 2 – 74,7 m²
    Duża sala sprzedażowa, magazyn, toaleta, aneks kuchenny.
    Aktualnie wynajmowany – sklep „Żabka”.
    Odrębne wejście od frontu, ogrzewanie gazowe.

  • Lokal 3 – 42,6 m²
    Dwa pomieszczenia, aneks kuchenny, wejście od strony oficyny.


PIĘTRO – 332,8 m²

  • Lokal 1 – 108,5 m² otwarta przestrzeń z przestronnym tarasem 111,1 m²

  • Lokal 2 – 84,2 m² (2 pokoje, kuchnia, łazienka)

  • Lokal 3 – 56,7 m² (2 pokoje, kuchnia, łazienka)


PODDASZE – 299,1 m²

Otwarta przestrzeń z dużym potencjałem aranżacyjnym.


PIWNICA – 52,3 m²

3 pomieszczenia – idealne na zaplecze magazynowe lub winiarnię.


Dodatkowe informacje:

  • Możliwość wydzielenia 6 miejsc postojowych z tyłu budynku

  • Okna PCV

  • Renowacja elewacji frontowej

  • Dach po remoncie (nieocieplony)

  • Media: prąd, gaz, woda, kanalizacja miejska


Historia i znaczenie zabytku:

Kamienica „Pod Białym Aniołem” to unikatowy obiekt z końca XVII wieku.
Przez wieki pełniła funkcję handlową i edukacyjną – to właśnie tutaj działała najstarsza apteka w Tarnowskich Górach(od 1790 roku), a także Górnośląska Szkoła Górnicza.

W 2020 roku kamienica została wpisana do rejestru zabytków nieruchomych województwa śląskiego pod numerem A/719/2020, co potwierdza jej wyjątkową wartość historyczną i architektoniczną.


Atuty nieruchomości:

  • Prestiżowa lokalizacja w centrum Tarnowskich Gór

  • Zabytek o bogatej historii i potencjale inwestycyjnym

  • Możliwość różnorodnego wykorzystania: handel, gastronomia, biura, apartamenty

  • Część lokali wynajęta – zapewniony dochód od pierwszego dnia

  • Potencjał adaptacji poddasza


Cena: 4.300.000,00 zł 

Zapraszam na prezentację nieruchomości po wcześniejszym kontakcie telefonicznym.

Opiekun oferty: 
Aneta Wilk
tel. 533 777 944
e-mail: biuro@wolfnieruchomości.pl 

 

Kalkulatory

Kalkulator kredytowy

Wysokość raty

PLN
%

Kalkulator kosztów

Podatek od czynności cywilno-prawnych

Taksa notarialna
(opłata notarialna)

Wniosek o wpis do KW

VAT od prowizji
agencji nieruchomości

VAT od taksy notarialnej
(opłaty notarialnej)

Prowizja agencji nieruchomości

Wypisy aktu notarialnego

Razem

Uwaga: mogą wystąpić dodatkowe opłaty za założenie księgi wieczystej oraz ustanowienie hipoteki.

PLN
PLN
PLN
PLN
PLN
PLN
%
PLN

Doradca ds. nieruchomości

Proszę wprowadzić poprawne imię i nazwisko
Proszę wprowadzić poprawny numer telefonu
Proszę wprowadzić poprawny adres e-mail
Proszę zaznaczyć wymagane zgody
Rozwiąż równanie:
29 6
Niepoprawny wynik