381.00 m²
2 572,18 zł/m2
7HS-BS-22490
Oblicz ratę kredytu

980 000 zł

Obiekt na sprzedaż
Nowa oferta

Szczegóły oferty

Symbol oferty 7HS-BS-22490
Powierzchnia 381,00 m²
Powierzchnia działki [m2] 215 m²
Rodzaj obiektu kamienica
Opłaty wg liczników prąd, woda, gaz
Woda jest
Dojazd asfalt
Otoczenie zabudowa wielorodzinna
Ogrzewanie brak
Wejście od ulicy
Prąd jest
Kanalizacja tak
Aneta Wilk

Aneta Wilk

Doradca ds. nieruchomości
Nr licencji: 23644

Napisz wiadomość 49 Ofert

Opis nieruchomości

Nieruchomość inwestycyjna – 11 lokali mieszkalnych + 1 usługowy – Centrum Bytomia przy Rynku

Lokalizacja: Bytom, blisko Rynku

Powierzchnia budynku: ok. 397 m²

Powierzchnia działki: 215 m²

Liczba lokali mieszkalnych: 11

Liczba lokali usługowych: 1

Stan budynku: surowy z wykończonymi elementami konstrukcyjnymi


Opis nieruchomości:

Na sprzedaż nieruchomość inwestycyjna z ogromnym potencjałem, położona w ścisłym centrum Bytomia, tuż przy Rynku. Budynek o łącznej powierzchni użytkowej ok. 397 m² usytuowany jest na działce o pow. 215 m².

Budynek przeszedł gruntowną modernizację konstrukcyjną – wykonano m.in.:
✔ nowe stropy Teriva
✔ nowe pokrycie dachowe z pełnym deskowaniem
✔ przygotowane nadproża do montażu stolarki okiennej i drzwiowej
✔ ściany działowe zgodnie z koncepcją wydzielenia 12 lokali

Zgodnie z opracowaną koncepcją, budynek został zaprojektowany pod wydzielenie 11 mieszkań oraz 1 lokalu usługowego.


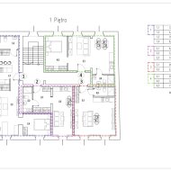
Rozkład lokali:

Parter:

  • Lokal 1 – 48,16 m²: salon z aneksem kuchennym, sypialnia, łazienka, wiatrołap z miejscem na szafę

  • Lokal 2 – 25,24 m²: salon z aneksem kuchennym, łazienka

  • Lokal 3 – 28,26 m²: salon z aneksem kuchennym, łazienka

  • Lokal 4 (usługowy) – 16,5 m²

Piętro I:

  • Lokal 5 – 44,64 m²: salon, kuchnia z jadalnią, sypialnia, łazienka

  • Lokal 6 – 25,55 m²: salon z aneksem kuchennym, łazienka, wiatrołap

  • Lokal 7 – 29,52 m²: salon z aneksem kuchennym, łazienka

  • Lokal 8 – 40 m²: salon z aneksem kuchennym, sypialnia, łazienka

Piętro II:

  • Lokal 9 – 44,64 m²: salon, kuchnia z jadalnią, sypialnia, łazienka

  • Lokal 10 – 25,55 m²: salon z aneksem kuchennym, łazienka, wiatrołap

  • Lokal 11 – 29,52 m²: salon z aneksem kuchennym, łazienka

  • Lokal 12 – 40 m²: salon z aneksem kuchennym, sypialnia, łazienka


Atuty nieruchomości:

✅ Doskonała lokalizacja – tuż przy Rynku
✅ Idealna pod inwestycję najmu długoterminowego lub krótkoterminowego
✅ Ścisłe centrum miasta – bliskość sklepów, restauracji, przystanków, szkół i przedszkoli
✅ Wysoki potencjał dochodowy
✅ Stan surowy – możliwość aranżacji i wykończenia wg własnych potrzeb lub projektu


Cena: 980.000 brutto

Kontakt: 533-777-040

Możliwość prezentacji po wcześniejszym umówieniu


Chcesz uzyskać więcej informacji lub obejrzeć nieruchomość?
Zadzwoń i umów się na spotkanie – ta inwestycja może przynieść Ci realny zysk!

Kalkulatory

Kalkulator kredytowy

Wysokość raty

PLN
%

Kalkulator kosztów

Podatek od czynności cywilno-prawnych

Taksa notarialna
(opłata notarialna)

Wniosek o wpis do KW

VAT od prowizji
agencji nieruchomości

VAT od taksy notarialnej
(opłaty notarialnej)

Prowizja agencji nieruchomości

Wypisy aktu notarialnego

Razem

Uwaga: mogą wystąpić dodatkowe opłaty za założenie księgi wieczystej oraz ustanowienie hipoteki.

PLN
PLN
PLN
PLN
PLN
PLN
%
PLN

Podobne oferty

Obiekt na sprzedaż

Bytom

1 342 m2 670,64 zł/m2

Doradca ds. nieruchomości

Proszę wprowadzić poprawne imię i nazwisko
Proszę wprowadzić poprawny numer telefonu
Proszę wprowadzić poprawny adres e-mail
Proszę zaznaczyć wymagane zgody
Rozwiąż równanie:
25 6
Niepoprawny wynik